
Котел на древесных отходах 580 кВт в Костроме
Цена 704 000 рублей с НДС
Котел работает на сырых дровах, щепе, коре, стружке, опилках, досках, поддонах, отходах мебельного производства, ДСП
Большая топочная камера
Полное догорание топлива
Отапливаемая площадь помещения от 4500 до 6400 м2, отапливаемый объем от 13300 до 19100 м3. Температура 115 градусов.
Марка котла | Котел КВ Д ПТ, Котел малой мощности | Расход теплоносителя среды, м³/ч | 20 |
---|---|---|---|
Тип котла | Водогрейный | Гидравлическое сопротивление при перепаде t, МПа (кгс/cм²) | 0.07 (0.7) |
Вид топки | Подовая, ручная | Аэродинамическое сопротивление, Па (мм. вод. ст.) | 61 |
Максимальная тепловая мощность, кВт | 580 | Разряжение в топочной камере, Па (мм. вод. ст.) | 20-40 |
Максимальная тепловая мощность, МВт | 0.58 | Расход уходящих газов, м³/ч | 2790 |
Максимальная тепловая мощность, Гкал | 0.5 | Температура уходящих газов, °C | 220 |
Диапазон регулирования, % | 50-100 | Присоединенная электрическая мощность, кВт | 4.5 |
Топливо | Твердотопливный, Дрова, древесные отходы естественной влажности | Тяга | Уравновешенная |
Низшая теплота сгорания топлива, кКал/м³ | 2440 | Полный объем котла, м³ | 500 |
Влажность | 40 | Объем топочной камеры, м³ | 2.0 |
КПД, не менее, % | 80 | Размер топочной камеры, длина*ширина*высота, мм | 1225х960х1700 |
Расход топлива среднечасовой за отопительный сезон, кг/ч | 141.4 | Активная площадь решетки горения, м² | 1.18 |
Расход топлива при максимальной нагрузке котла (ДРОВА), кг/ч | 247 | Присоединительные размеры по водяному тракту, Ду | 100 |
Расход условного топлива, кг/ч | 86 | Присоединительные размеры газохода уходящих газов, ширина*высота / сечение, мм/м² | 600х200/0.12 |
Отапливаемая площадь, м² | 4500-6400 | Габаритные размеры, длина*ширина*высота, мм | 2370х1605х2250 |
Отапливаемый объем, м³ | 13300-19100 | Масса, кг | 2500 |
Температура воды, °C | 115 | Энергоэффективность | Высокая |
Давление рабочей среды, МПа (кгс/cм²) | 0.3-0.6 | Бренд | HeatExpert |
Это устройство работает со вспомогательным оборудованием, которое приобретается отдельно. Если вы хотите сразу узнать стоимость всей установки, добавьте заинтересовавшие вас позиции в корзину. Чтобы точно расчитать стоимость доставки до вашего объекта, укажите его адрес в корзине и оправьте нам заявку. Обычно мы отвечаем в течение дня.


Котел на древесных отходах
Твердотопливный котел на отходах лесопиления
Котел на отходах деревообработки
Шибер газохода котла на древесных отходах
Подовая топка
Котел утилизатор древесных отходов
Водогрейный котел на древесных отходах 580 кВт в Костроме
Отопительный котел на древесных отходах мощностью 580 кВт применяется для сжигания древесных отходов предприятий деревообработки, лесопиления и пилорам, древесины естественной влажности, сырых и влажных дров, бревен и поленьев, горбыля, щепы, коры, стружки и опилок, досок и поддонов, отходов мебельного производства и ДСП.
Особенности конструкции котла 580 кВт на отходах деревообработки естественной влажности
Котел на отходах деревообработки 580 кВт изготавливается с подовой топкой, которая выкладывается из огнеупорного кирпича. Образующийся в топке пояс зажигания необходим для устойчивости воспламенения, интенсивного подсушивания и стабильного горения топлива естественной влажности. Особая система подачи воздуха в под топки усиливает процесс сушки и горения крупного и мелкофракционного влажного и сырого древесного топлива. Большие размеры подовой топки позволяют загружать большой объем топлива при одной загрузке. Для догорания легких и мелких частиц топлива на выходе из топки установлена поворотная камера. Развитые поверхности нагрева способствуют снижению температуры уходящих газов и обеспечивают высокий КПД. Котлоагрегат работает с ручной загрузкой топлива, но при необходимости автоматизировать процесс загрузки топлива, мы можем предложить вам автоматическую установку.
Твердотопливный котел на отходах лесопиления 580 кВт устройство
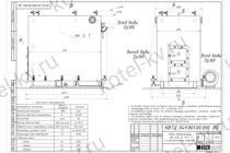
Отечественный водогрейный котел на отходах деревообработки и лесопиления 580 кВт конструктивно выполнен моноблоком: блок котла и ручная подовая топка с поясом зажигания. Котельная установка работает с уравновешенной тягой, который обеспечивает дутьевой вентилятор и дымосос.
Котел утилизатор древесных отходов 580 кВт изготавливается водотрубным, горизонтальным, прямоточным, газоплотным с принудительной тягой. Агрегат имеет гидравлическую схему потока воды исключающую образование застойных зон, перегрев поверхностей нагрева, обеспечивает хороший теплосъем, отсутствие накипи и, следовательно, необходимость в тщательной водоподготовке. Качественная газоплотная теплоизоляция котлоагрегата гарантирует максимальное уменьшение потерь тепла через стенки котла и изоляцию, отсутствие присосов холодного воздуха в топочную камеру, делая процесс горения топлива более интенсивным и эффективным.
Благодаря большому объему топочной камеры, котел 580 кВт может применяться для сжигания влажного горбыля, бревен в нем можно утилизировать поддоны, паллеты, доски, отходы мебельного производства и ДСП. В топку можно загружать в небольших объемах сырые, влажные опилки и щепу. Получая тепло на отопление производственных цехов, вы решаете проблему утилизации отходов лесопиления. По индивидуальному техническому заданию мы можем произвести установку под ваши задачи - с увеличенным объемом дверей, более высокой подовой топкой, дополнительными окнами для удобства обслуживания.
Котлы отопления на древесных отходах 580 кВт российского производства представляют собой надежные трубные сварные конструкции, состоящие из трубной системы (радиационной и конвективной поверхности нагрева), опорной рамы и каркаса с теплоизоляционными материалами, обшитого листовой сталью. Агрегат имеет П-образную сомкнутую компоновку. Газы в конвективной части проходят два хода и выходят через газоход в верхней части задней стенки котла. В поде топки имеются многочисленные воздуховоды для интенсивной подачи воздуха в зону горения. Теплоизоляция блока котлоагрегата выполнена из муллитокремнеземистого войлока и теплоизоляционной плиты ПТЭ. Обшивка агрегата выполнена из стальных листов. Для очистки конвективных поверхностей нагрева от сажистых отложений предусмотрены люки.
Комплект поставки
Котел 580 кВт на отходах деревообработки производства Россия с поясом зажигания и подовой топкой поставляется готовым напольным блоком в обшивке. С котлоагрегатом поставляется паспорт и инструкция по эксплуатации.
В комплект входят запорная арматура, КИП и ДВ: затворы дисковые - 2 шт., запорные вентили - комплект, предохранительные клапаны, термометры с оправой - 2 шт., манометры с кранами - 2 шт, дутьевой вентилятор - 1 шт.
Дополнительная комплектация
Автоматика подбирается по техзаданию.
Производственный котел 580 кВт на отходах лесопиления для стационарной котельной работает с дымососом.
Для обеспечения циркуляции воды через котел, либо группу котлов применяется циркуляционный насос, для подпитки котлоагрегата применяется подпиточный насос.
Дымовая труба - подбирается по техзаданию, на котел или группу котлов. Золоуловители при сжигании древесного топлива не требуются, но по вашему желанию мы можем поставить золоуловители собственного производства типа ЦН или ЗУ.
Котел промышленный на древесном топливе естественной влажности мощностью 580 кВт - компактный, транспортируется автотранспортом, но в зависимости от удаленности и возможности подъезда автотранспорта, доставка может осуществляться ж/д контейнером. Для оценки стоимости доставки пришлите заявку и мы оперативно проведем расчет стоимости доставки до вашего города или населенного пункта.
Купить котел на древесных отходах 580 кВт
Для того чтобы купить твердотопливный котел на отходах лесопиления 580 кВт в Костроме, вы можете сделать заявку в отдел сбыта по телефону 8 (800) 551-70-98, либо оформить заявку через наш сайт. Наши менеджеры дадут консультацию по подбору вспомогательного оборудования для выбранных вами моделей и рассчитают стоимость доставки оборудования до вашего региона и населенного пункта. Также предлагаем вам выполнить проект реконструкции котельной.
Купить котел на древесных отходах 580 квт в Костроме
Водогрейный котел на древесных отходах 580 кВт с температурой 115 градусов для предприятий деревообработки, лесопиления и пилорам.
Предлагаем вам подобрать мощность водогрейного промышленного котла по отапливаемой площади и объему, с учетом типа строения и данных о температуре в регионе и в Костроме, вида топлива.
Выбор водогрейного котла для котельной производится по каталогу отопительного оборудования нашего Котельного завода с помощью калькулятора подбора мощности. Водогрейные котлы отопления для промышленных предприятий предлагается выбрать из модельного ряда газовых, дизельных, мазутных, твердотопливных угольных и дровяных котлов, с ручными и автоматическими топками мощностью от 150 кВ до 4 МВт, и температурой нагрева теплоносителя до 115 градусов.
Подбор мощности водогрейного промышленного котла для отопления учитывает:
- температуру в самую холодную пятидневку в отопительный сезон. Для каждого региона РФ температура различна, данные берутся из СП 131.13330 «Строительная климатология»;
- тепло, необходимое для возмещения потерь тепла через ограждения, окна, двери здания и тепловые потери через не плотности строения и открываемые двери;
- температуру воздуха внутри помещений. Для различных типов и назначений строений она существенно отличается:
Тип отапливаемого строения | Температура внутри помещения |
---|---|
Жилые строения и административные здания | + 20 С° |
Больницы, детские сады | + 22 С° |
Учебные заведения, предприятия общепита, учреждения культуры, школы | + 16 С° |
Магазины и депо | + 15 С° |
Кинотеатры | + 14 С° |
Гаражи | + 10 С° |
Бани | + 25 С° |
- объем строения. Для определения наружного объема строения площадь по наружным стенкам строения на уровне первого этажа перемножается на высоту. Для панельных домов высота определяется: от уровня пола (нулевой отметки) до верхней плоскости теплоизоляционного слоя чердачного покрытия. Для остальных зданий высота определяется от уровня земли. Подбор мощности для отопления различных по назначению строений считается отдельно. Все полученные значения мощности складываются.
Подбор мощности водогрейного промышленного котла производится для общей суммарной мощности каждого отдельно стоящего задания.
Если вам требуется подобрать мощность котла в Костроме для котельной с учетом вентиляции здания, горячего водоснабжения объекта, потерь в теплотрассе - необходимо производить более подробный расчет. Данный расчет мы можем произвести для вас бесплатно. Отправьте опросный лист и заявку на электронный адрес sale@kotel-kv.ru или позвоните по телефону 8 (800) 551-70-98.
комплект